Nhà ở Biệt thự pháp tân cổ điển Thiết kế theo xem phong thủy - Tuyên Quang
Biệt thự pháp tân cổ điển Thiết kế theo xem phong thủy Nhà ở tuyên quang, được Kiến trúc sư Hoàng Trà và đồng nghiệp tại Công ty Kiến trúc Xây Dựng DD Hà Nội triển khai
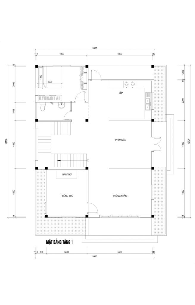
Mặt bằng Thiết kế Phong thủy Tầng 1
Biệt thự pháp tân cổ điển Thiết kế theo xem phong thủy Nhà ở tuyên quang - Duyệt lần 1
Mặt bằng Thiết kế Phong thủy Tầng 2
Biệt thự pháp tân cổ điển Thiết kế theo xem phong thủy Nhà ở tuyên quang - Duyệt lần 1
Mặt bằng Công năng Tầng 1
Biệt thự pháp tân cổ điển Thiết kế theo xem phong thủy Nhà ở tuyên quang - Duyệt lần 1
Mặt bằng Công năng Tầng 2
Biệt thự pháp tân cổ điển Thiết kế theo xem phong thủy Nhà ở tuyên quang - Duyệt lần 1
Phối cảnh Công Trình - Phương án chọn
Biệt thự pháp tân cổ điển Thiết kế theo xem phong thủy Nhà ở tuyên quang





