Thiết kế Nhà ở Biệt Thự nhà vườn dạng Dinh Thự theo Phong Thủy
1. Yêu Cầu Thiết Kế Quy Mô Nhà ở Biệt Thự dạng Dinh Thự theo phong thủy
- Kích thước khu đất: Mặt tiền 36m, chiều sâu 25m
- Nhà cao 3 tầng
- Tầng 1: 01 Phòng khách rộng; 01 bếp rộng; 01 phòng ngủ cho người cao tuổi, khép kín; 01 ngủ giúp việc; 01 vệ sinh chung; 01 gara kết hợp là không gian ăn uống khi có giỗ, có vách kính di động để đóng lại khi bật điều hòa
- Tầng 2: 03 phòng ngủ chính của gia đình, phòng ngủ vip có phòng thay đồ, 01 phòng sinh hoạt chung, 01 phòng Gym
- Tầng 3: 01 phòng thờ Phật, 01 phòng thờ Các Quan và Gia Tiên, 01 phòng ngủ khách, 01 phòng thư viện, 01 sân phơi
2. Lên Phương án Mặt Bằng theo Đề xuất tưởng của Chủ Nhà
Với mong muốn Sảnh nhà rộng và ô tô có thể đỗ ở chính. Phòng khách liên thông với bếp và ăn, từ phòng ăn liên thông với không gian có thể ngồi được khoảng 45 người khi có giỗ chạp.
Tuy nhiên để đảm bảo xe lên xuống sảnh hơi khó với chiều sâu hiện tại của lô đất và cơ cấu công năng của nhà. Nhưng không gian ăn lớn hiện nay láng phí, mà ga ra ô tô lại phải xây thêm, thì chưa hợp lý.
Tầng 1 có 01 phòng ngủ cho Ông Bà, có view đẹp, liên thông phòng khách khi tiếp đón khách. Có 01 phòng giúp việc ở cuối, tiện cho việc bếp.
Với đề xuất phòng ngủ Vip đặt ở trong, có đầy đủ không gian thay đồ và phòng làm việc. Tuy nhiên góc view và tính toán phong thủy lại không được cung tốt về tài vận và văn xương. Có một phòng ngủ có view đẹp nhất lại không có wc
Nhà có Ban thờ Phật và Thờ Thần Linh cùng Gia tiên riêng nên có hai phòng thờ, tuy nhiên công năng có phần hơi rối
3. Phương Án chọn và Giải Pháp Thiết kế Nhà theo phong thủy
Sau khi lên ý tưởng theo đề xuất và trao đổi về Phong thủy, cùng một số ưu nhược điểm.
Kiến trúc sư Phong thủy Hoàng Trà cùng các anh em Kiến trúc sư khác đưa ra thêm 03 phương án khác.
Sau nhiều lần căn chỉnh và đối chiếu theo tổng quan của tất cả các trường phái phong thủy: Loan đầu – Huyền không – Tam hợp – Dương trạch tam yếu – Bát trạch – Khí – Cảm xạ - Bát trạch và đối chiếu Ngũ hành bản mệnh theo Lục thập hoa giáp và Lá số tứ trụ của từng thành viên.
Thiết kế Mặt bằng Quy hoạch Toàn khu đất theo phong thủy
Với tiêu chí diện tích sân vườn càng nhiều càng tốt, phòng khác và phòng ăn là có nhiều khoảng view ra sân vườn nhất có thể.
Sân trước nhà là để xe đi lại thường xuyên, khoảng sân cạnh cầu thang là nơi để xe cố định và cũng là khoảng đệm để quay đầu xe.
Ga ra không xây tường đặc, chỉ có cửa cuốn sát trần, đảm bảo tầm view cho phòng khách. Khi trời mưa gió hoặc nắng gắt thì xe đi về đỗ xe sẽ đảm bảo sức khỏe và bảo vệ xe. Khi đi ngủ hoặc đi xa nhà thì đóng cửa cuốn xuống, đảm bảo an ninh nhưng sáng dậy thì điều khiển cửa cuốn mở lên.
Khoảng gara cũng là phòng ăn mở khi có công việc đãi nhiều khách. Ngoài cửa cuốn ra thì vẫn có cửa kính trắng trượt sát vào tường, khi cần mở điều hòa thì kéo vào, nhưng tầm nhìn ra sân vườn vẫn đảm bảo.
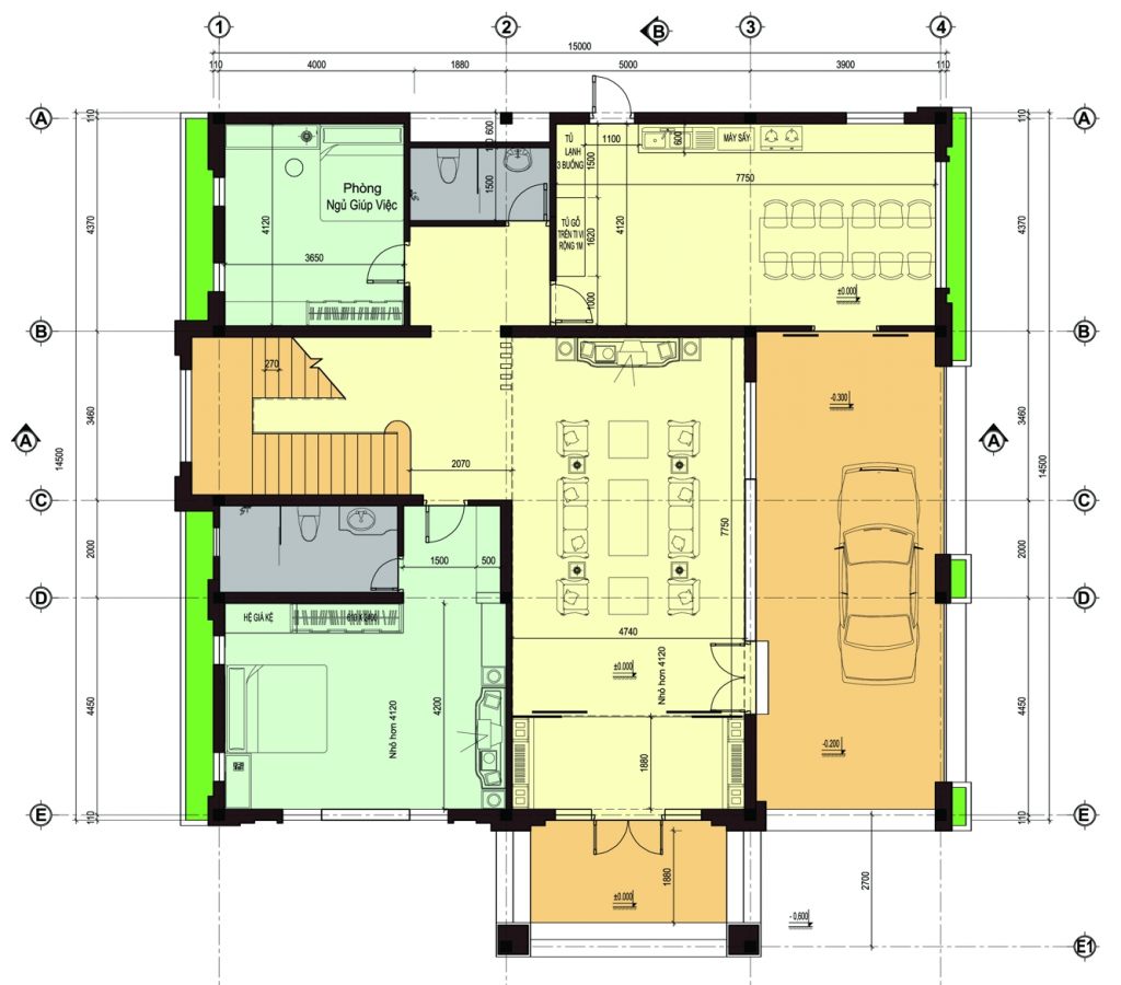
Phương án Mặt bằng Tầng 1 chi tiết như sau:
Tầng 1 án ngữ vào đồ hình và xắp đặt theo phong thủy
- Theo quan điểm thông thường thì mọi người tính toán phong thủy theo Bát Trạch. Với hướng nhà là Đông Nam thì phạm vào hướng lục sát với Tuổi Ông sinh năm 1957. Thế nên khi thiết kế nhà tính toán theo phong thủy lấy tuổi của Trưởng nam sinh năm 1981 để được hướng sinh khí. Tuy nhiên vẫn mở thêm một cửa từ phòng khách hướng về Đông Bắc để lấy hướng phúc đức theo Ông sinh năm 1957. Như thế theo bát trạch được cả hướng của bố và con
- Về dương trần thì ai sở hữu sổ đỏ thì chúng ta nghĩ là phong thủy tính theo tuổi người đó. Nhưng về Tâm Linh và Phong Thủy thì ai đứng động thổ thì mới tính theo tuổi người đó, cho nên lấy nam 1981 để động thổ vào năm 2018. Trong trường hợp cần xây gấp thì lấy tuổi Ông 1957 động thổ vào năm 2017, tuổi âm là 61, nhưng không phải là phạm kim lâu, vì kim lâu là bài toán lấy tuổi âm chia 9 dư 1-3-6-8, chứ không phải là số đuôi của tuổi
- Tầng 1 được tính toán kích thước chi tiết cho từng không gian, ngay cả kho dụng cụ làm vườn cạnh nhà vệ sinh cũng được tính toán
- Không gian giao thông của tầng 1 được bố trí liên hoàn và không bị ảnh hưởng tới nhau.
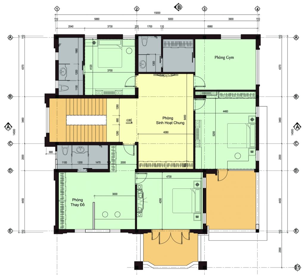
Phương án Mặt bằng Tầng 2 đã chọn như sau:
Phòng ngủ Vip tầng 2 được bố trí ở vị trí có sang trọng và tầm nhìn tốt nhất, có đầy đủ các không gian Phòng làm việc – Thay đồ và Ban công
Các phòng ngủ và vị trí cùng hướng giường được tính toán chi tiết cho từng thành viên, không gian sinh hoạt chung rộng rãi và không bị chồng chéo, có phòng tập gym view đẹp bên cạnh.
Tầng 2 án ngữ vào đồ hình và xắp đặt theo phong thủy
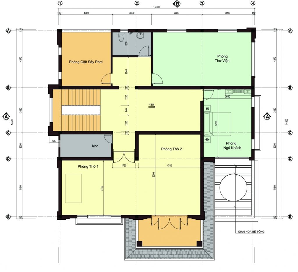
Phương án Mặt bằng Tầng 3 giải pháp như sau:
Tầng 3 án ngữ vào đồ hình và xắp đặt theo phong thủy
Với không gian chính là thờ, thì phòng đặt chung và khu phòng thờ 1 đặt ban Phật, khu phòng thờ 2 đặt ban thờ Thần Linh và Gia tiên.
Có 01 phòng ngủ cho khách và phòng thư viện cạnh wc chung, có khu phơi riêng.
4. Thiết kế Phối cảnh Biệt thự Nhà vườn kiểu dinh thự 3 tầng.
Để mang tầm Nhà ở kiểu Dinh Thự thì nhà phải đặt tiêu chí sang trọng lên hàng đầu. Mang dáng dấp hiện đại, nhưng không đơn điệu kiểu hiện đại, mới nhìn thì thích nhưng nhanh chán. Cho nên Ngôn ngữ thiết kế phải thể hiện sự quý tộc, nhìn vào công trình có nhiều điều để khám phá, để công trình là một tác phẩm nghệ thuật không bị lạc thời theo thời gian
Ảnh Phối Cảnh góc 1 Biệt thự nhà vườn kiểu dinh thự

Ảnh Phối Cảnh góc 1 Biệt thự nhà vườn kiểu dinh thự
5. Kết Luận: Khi thiết kế Nhà ở Biệt thự sang trọng đẳng cấp như Dinh Thự, là một sản phẩm trí tuệ và nghệ thuật và kỹ thuật, nên cần sự phối hợp chặt chẽ giữa Kiến trúc sư giỏi phong thủy và Chủ đầu tư.
Mọi người có nhu cầu liên hệ trực tiếp Kiến trúc sư Phong thủy Hoàng Trà 0989913611-0916299611











