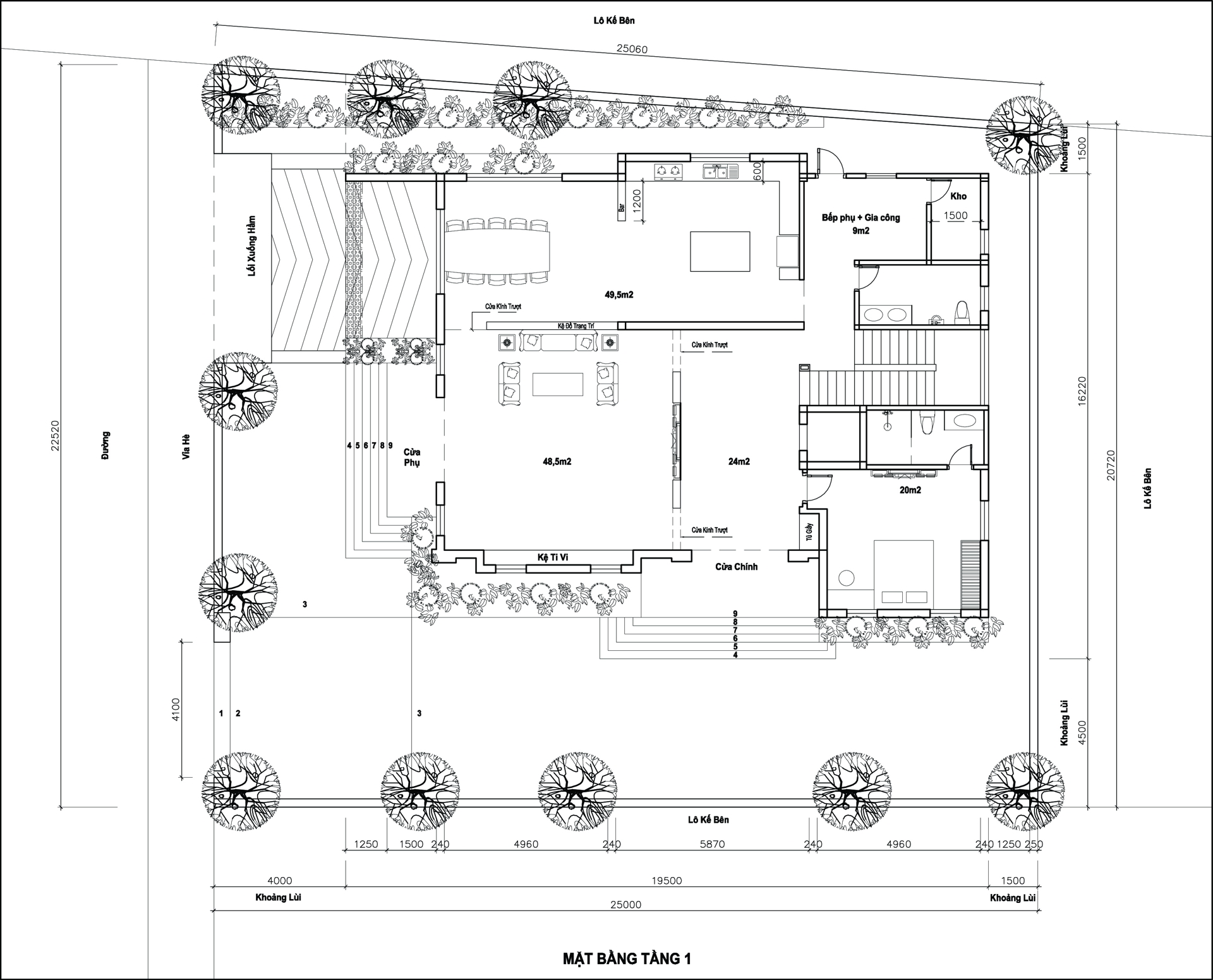
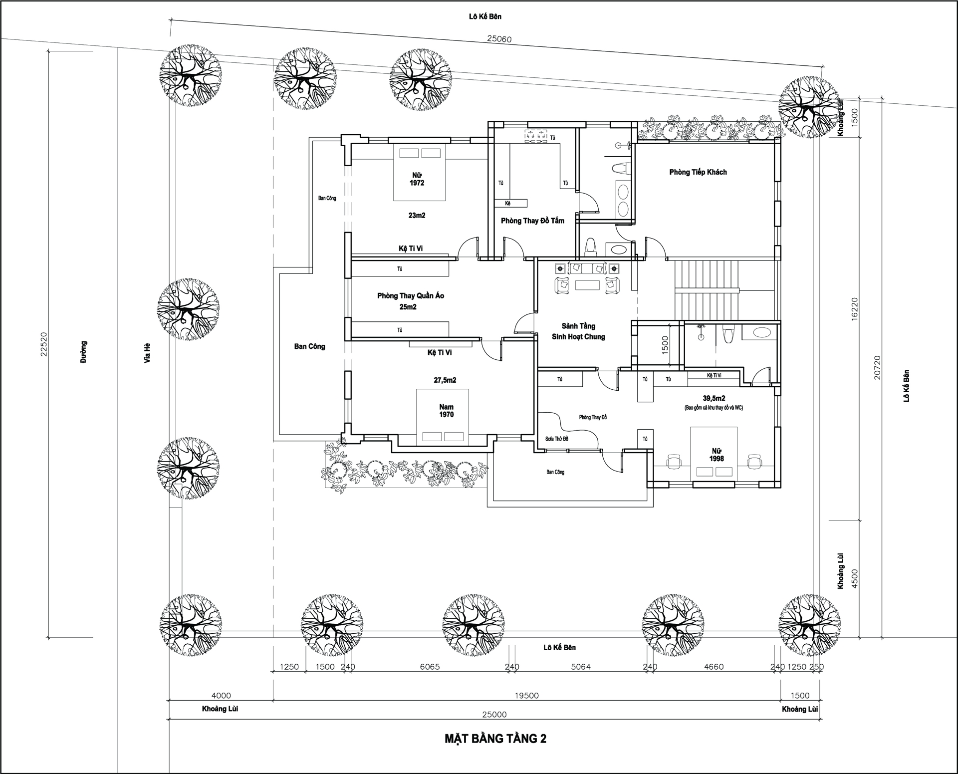
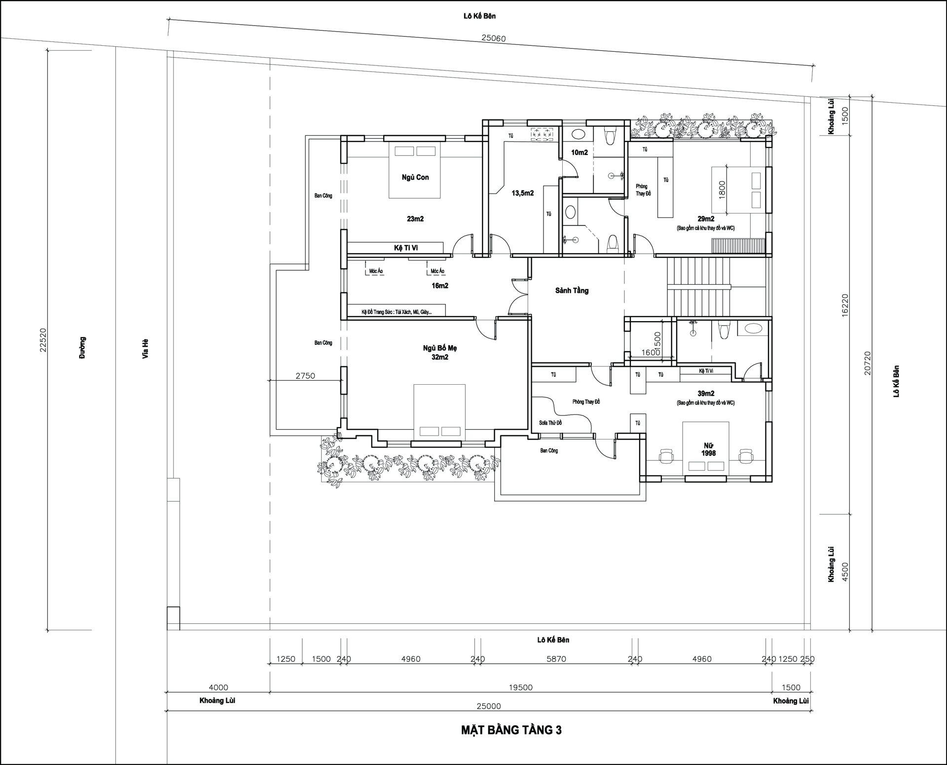
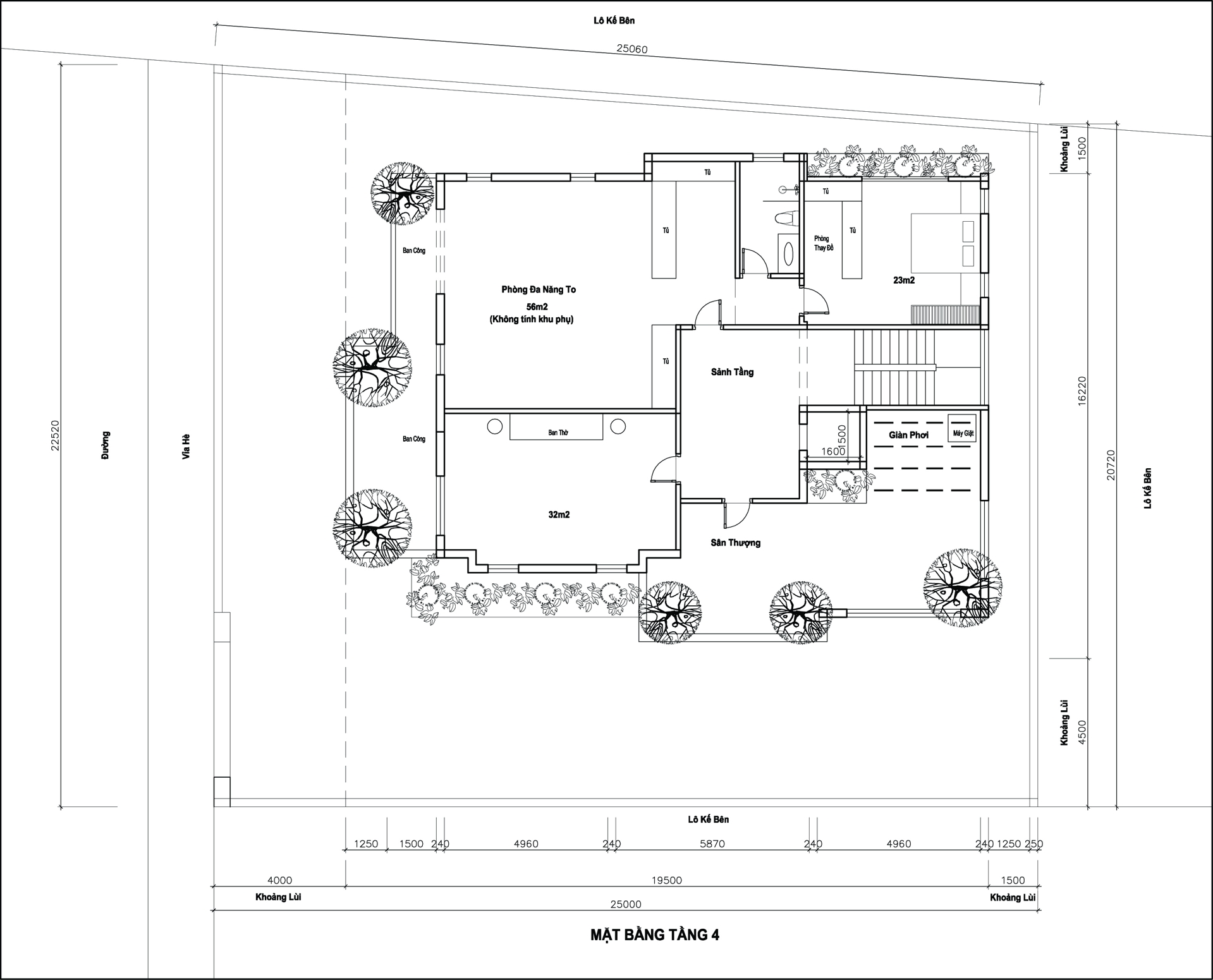
Biệt Thự 3 tầng pháp cổ, biệt thự kiểu pháp, biệt thự tân cổ điển 4 tầng tính cả tum




Biệt thự pháp 3 tầng: có tầng mái làm phòng thờ + phòng đa năng + khu giặt phơi, kiến trúc theo phong cách tân cổ điển hoặc pháp cổ, yêu cầu thiết kế kiến trúc theo phong thủy (biệt thự tân cổ điển 4 tầng tính cả tum)
