Thiết kế theo phong thủy Hóa giải đất phạm hướng Họa hại
Phần 1. Câu hỏi của độc giả Tuấn Lâm sinh năm 1973. Thiết kế Nhà ở theo phong thủy Hóa giải hướng đất phạm Họa hại
Tôi có mảnh đất rộng 10m, chiều sâu 30m, hướng đất là hướng đông bắc có số độ là 65độ. Nay tôi muốn xây nhà 1 tầng: có 1 phòng khách kết hợp phòng thờ, 1 bếp và ăn, 3 phòng ngủ, trong đó có 1 phòng ngủ dự phòng cho con sau này và trước mắt là để phòng làm việc. Nếu xây nhà theo hướng của lô đất thì phạm vào hướng họa hại, theo 24 sơn hướng lại phạm cung khẩu thiệt. Tôi có chủ chương xây một phần đất, còn một phần làm sân vườn, có thể xây xoay chéo lấy hướng tốt và còn lại để sân trước rộng, có thể xây nhà dọc, tùy theo phong thủy theo hướng nào tốt nhất; vì tôi đã chứng kiến nhiều người đang thịnh sau khi xây nhà mới và về ở thì bị suy rất nhanh. Kính mong kiến trúc sư phong thủy Hoàng Trà phân tích về thiệt hơn khi xoay thiết kế của ngôi nhà và giải pháp kiến trúc được toàn diện.
Phần 2. Tư về phong thủy và phương án thiết kế nhà ở hóa giải hướng đất phạm Họa hại, của Chuyên gia phong thủy Kiến trúc sư Hoàng Trà.
Để chọn phương án xắp đặt phong thủy cho nhà anh Tuấn Lâm, chúng ta cùng phân tích lần lượt các thế và hướng khác nhau của ngôi nhà. Thứ nhất tôi phân tích hướng nhà hiện tại là hướng đông bắc có số độ là 65, nếu xây nhà theo hướng này thì về phong thủy bát trạch phạm hướng họa hại và phạm cung khẩu thiệt trong 24 sơn hướng. Tính theo phong thủy huyền không nhà này phạm thế thượng sơn và năm 2016 có ngũ hoàng đóng ở đông bắc, nên năm 2016 xây nhà và nhập trạch là rất suy. Tuy nhiên nếu sang năm 2017 xây nhà và nhập trạch, cộng với đặt cổng ở phương vị đông nam thì nhà này vẫn tốt, nếu tính điểm trên thang bậc 10 thì nhà này được hơn 6 điểm. Như vậy việc xoay sang hướng đông 70 độ là tốt hơn rất nhiều, nếu việc án ngữ phong thủy ngoại thất chuẩn thì nhà này có thể đạt thang điểm theo phong thủy là 9/10 điểm. Vì phong thủy ngoại thất và nội thất ảnh hưởng như nhau, mỗi phần chiếm 50% sự ảnh hưởng.
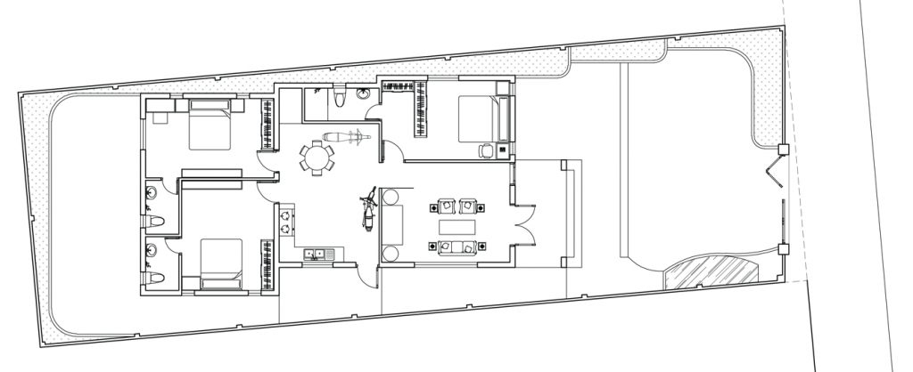
Trước khi nói về phong thủy tốt hay không, thì phải xem công năng sử dụng của ngôi nhà có hợp lý hay không, hình dạng của ngôi nhà khi xây lên có đẹp hay không. Mọi người cùng nghiên cứu bản vẽ mặt bằng công năng tầng 1, để thấy đã hợp lý về mặt công năng sử dụng hay chưa.
(Phương án Thiết kế Mặt bằng Nhà ở trước khi tính toán theo phong thủy Hóa giải hướng đất phạm Họa hại)
(Phương án Mặt đứng Nhà ở khi Thiết kế theo phong thủy Hóa giải hướng đất phạm Họa hại)
Trong phương án về kiến trúc Mặt bằng công năng của căn nhà như trên, xoay hướng cửa đi 5 độ về phía đông, để được hướng sinh khí theo bát trạch. Có người nói thiết kế như thế thì lô đất bị chéo và không vuông với ngôi nhà, liệu có bị xấu về phong thủy không. Khẳng định là không bị xấu về phong thủy. Sân vườn chúng ta xây dựng vuông theo nhà, còn lại đất trồng cây ta để chéo. Trong phong thủy nếu là đất không chưa có nhà, thì người ta xem hướng đất, để biết tốt xấu. Khi có nhà trên đất thì sự tốt xấu tính theo ngôi nhà, với mảnh đất lớn dù có hình dạng như thế nào đi chăng nữa và có xây bao nhiêu cái nhà, thì sự tốt xấu theo phong thủy phải tính theo từng thế và hướng của mỗi ngôi nhà.
(Mặt bằng Nhà ở theo phong thủy Thiết kế Hóa giải đất phạm hướng Họa hại)
Ở mặt bằng Mặt bằng Nhà ở Thiết kế theo phong thủy như trên, cửa chính vừa có vị trí và hướng nằm trong cung sinh khí. Nhưng đó chỉ là theo phong thủy bát trạch, còn trường phái khác thì sao. Theo huyền không phi tinh thì hướng nhà và cửa nằm trong phương vị có bộ sao vận sơn hướng là 6-9-8, nên rất vượng đinh vượng tài. Khi bố trí hồ cảnh ở trước nhà, phải đặt ở phương đông thì sẽ được thế vượng đinh vượng tài. Nhưng nếu đặt ở phương đông bắc sẽ không còn vượng nữa. Với mỗi hướng nhà khác nhau sẽ có phương vị đặt Hồ cá và Bể cảnh khác nhau, chứ không phải cứ cùng hướng đông là đặt bên giống nhau. Còn luận theo một số trường phái khác như Dương trạch tam yếu, tam hợp, khí, cảm xạ, tứ trụ thì sẽ có riêng cho gia chủ, chứ viết lên đây thì nhiều quá.
Với thiết kế kiến trúc nhà ở theo phong thủy cho nhà anh Tuấn Lâm như trên, vừa được toàn cục của ngôi nhà tốt theo phong thủy huyền không phi tinh, lại được hướng toàn nhà là sinh khí theo bát trạch, phòng ngủ xoay cửa hướng nhận hướng nam là phục vị làm hướng, giường ngủ quay về hướng đông là hướng sinh khí. Đảm bảo cửa chính, ban thờ, bếp, giường ngủ, cổng đều được những phương vị tốt theo phong thủy, công năng lại thuận tiện. Còn về mỹ thuật của ngôi nhà như nào thì chúng ta xem bản vẽ mặt đứng và phối cảnh dưới đây.
(Phương án Phối cảnh Nhà ở khi Thiết kế theo phong thủy Hóa giải hướng đất phạm Họa hại)
Để có Thiết kế Ngôi nhà tốt theo phong thủy và hợp lý về công năng sử dụng. Các bạn hãy liên hệ Kiến trúc sư Hoàng Trà 0916299611, giám đốc Công ty Kiến trúc và XD Dân Dụng HN 0989913611. Chúc bạn luôn luôn tìm ra giải pháp tốt về phong thủy cho ngôi nhà của mình.




