Thiết kế kiến trúc phong thủy nhà ở mặt phố ở Hòa Bình
Kts Hoàng Trà đăng bài này để mọi người biết Cửa mở bên Bạch Hổ tốt hơn cửa mở bên Thanh Long
Đối với nhà mặt phố thiết kế kiến trúc không khó với kiến trúc sư. Đối với chủ đầu tư có tầm hiểu biết về phong thủy, thì thiết kế nhà đẹp chỉ đáp ứng được một nửa nhu cầu, thiết kế nhà đẹp nhưng phải đúng phong thủy mới đáp ứng được nhu cầu của những gia chủ hiểu biết.
Nhiệm vụ thiết kế quý vị đọc bản vẽ sẽ hiểu, bởi công năng nhà cũng đơn giản. Quý vị xem các phương án dưới đây có phù hợp với mục đích xây thì kham khảo thêm.
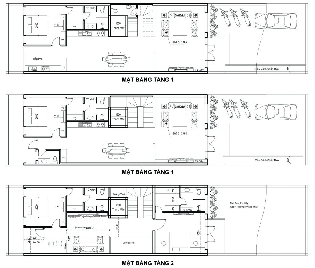
Phương án 1: Nhà ở Hòa Bình thiết kế kiến trúc phong thủy
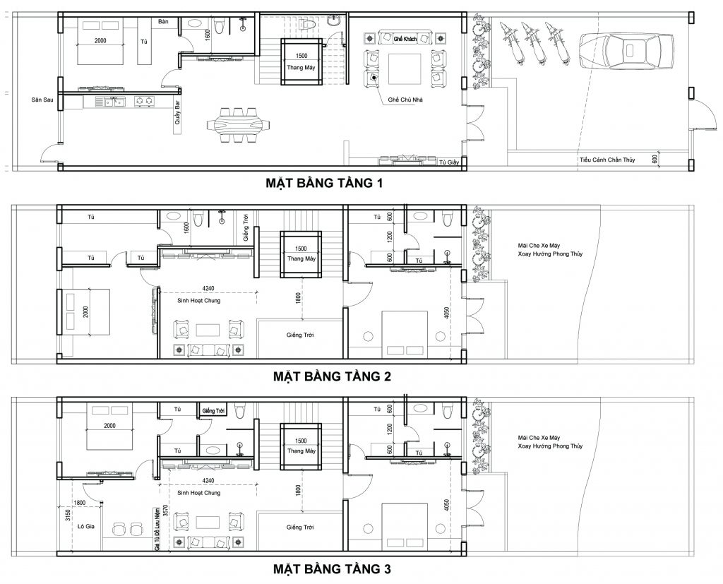
Phương án 2: Nhà ở Tp Hòa Bình thiết kế kiến trúc phong thủy
Mỗi chủ nhà lại có sở thích và mục đích sử dụng khác nhau, nên lựa chọn phương án kiến trúc cũng khác nhau. Thế nên, mỗi nhà có bản vẽ thiết kế riêng, chứ lấy y nguyên mang ra xây thì chưa chắc đã lợi. Tiết kiệm được vài chục triệu tiền thiết kế, đến khi xây lên và phải đập ra sửa lại, mỗi tầng lãng phí 3m2, tổng 4 tầng lãng phí 12m2, tiền xây tạm tính 6 triệu/m2 là quý vị tốn 72 triệu mà nhà sử dụng không hợp lý lại lãng phí. Ở thành phố lớn, mỗi m2 đất có giá trị rất lớn, nên đừng để lãng phí diện tích mà nhà ở vẫn xấu phong thủy.
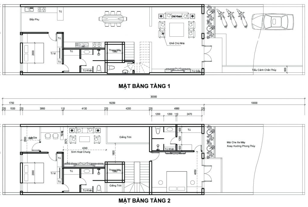
Phương án 3: Nhà ở tỉnh Hòa Bình thiết kế kiến trúc phong thủy
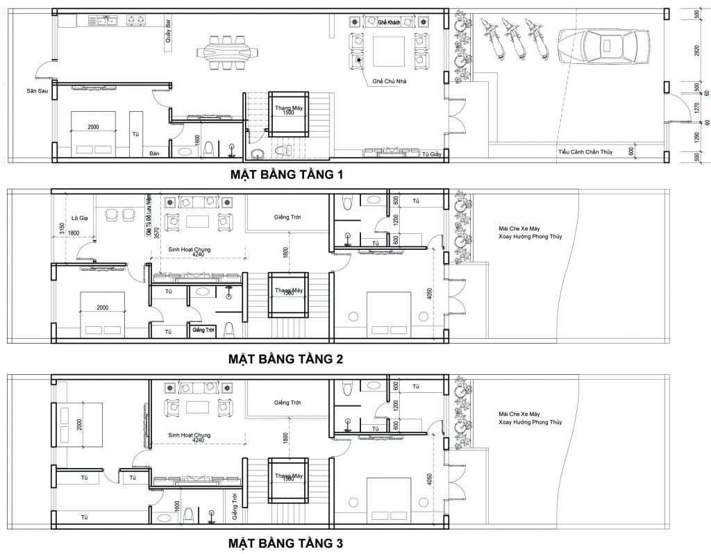
Phương án 4: Nhà mặt phố ở Hòa Bình thiết kế kiến trúc phong thủy
Phương án 5: Nhà 4 tầng ở Hòa Bình thiết kế kiến trúc phong thủy
Khi thiết kế kiến trúc mặt bằng, sẽ có nhiều phương án, mỗi phương án sẽ có vị trí công năng sử dụng khác nhau. Trên đây quý vị thấy, chỉ cần thay đổi cầu thang trong một ô đã có phương án kiến trúc khác nhau. Nếu kết hợp với thay đổi vị trí cửa chính bên bạch hổ sang bên thanh long và chọn cầu thang sang vị trí mới thì kiến trúc mặt bằng có hàng chục phương án.
Đây chỉ là nhà mặt phố, đối với biệt thự xây trên đất rộng thì có rất nhiều phương án kiến trúc mặt bằng, kiến trúc sư phải căn theo nhiệm vụ thiết kế của chủ đầu tư để thiết kế mặt bằng có công năng hợp lý và hợp ý chủ đầu tư và tốt theo phong thủy.
Nếu nhờ thầy phong thủy không đủ giỏi, kiến trúc sư chưa nhiều kinh nghiệm thì ngôi nhà đã không tốt theo phong thủy mà công năng sử dụng lại không hợp lý, tiền của tích góp xây được ngôi nhà mà chỉ mang lại khó chịu, chưa nói xây xong gia đình lại lụi dần đi.
Theo hiểu biết thông thường về phong thủy cửa bên thanh long tốt hơn bạch hổ, điều này có đúng không? Quý vị xem bản vẽ án ngữ vào sơ đồ phong thủy dưới đây:
Thiết kế kiến trúc phong thủy Nhà ở Hòa Bình
Đồ hình phong thủy áp vào bản vẽ kiến trúc Tầng 1
Kiến thức phong thủy cơ bản nói rằng: ở chu tước và thanh long nên động, nên đặt cổng và cửa chính, phù hợp với thủy là có ao hồ. Bên bạch hổ và huyền vũ phải tĩnh, không nên đặt cổng và cửa, phù hợp đặt non bộ khô và trồng cây lâu năm.
Kts Hoàng Trà khẳng định không giống kiến thức cơ bản, như hình trên, bên bạch hổ đang đặt cửa chính, nếu tính theo phong thủy bát trạch có hướng Tây Nam là hướng Phúc Đức và cửa chính có vị trí nằm trọn trong phương vị Tây Nam. Phương nam tính theo phong thủy bát trạch là Tuyệt Mệnh, dù bát trạch không có độ chính xác trong phong thủy thì ít gia chủ nào dám dùng.
Nếu người nào học Phong thủy huyền không cũng nhìn thấy bên Tây nam tốt hơn Nam. Ngoài ra còn nhiều kiến thức nữa, ví dụ khi tính phong thủy theo Huyền Không còn phải tính cho cả vận 9, còn phong thủy dương trạch tam yếu, phong thủy luận về khí…, nhưng Kts Hoàng Trà không làm quý vị mất thời gian, những ai học phong thủy có thể tìm hiểu và đối chiếu thêm.
Như nhà này, cứ thiết kế đặt cửa bên thanh long, xây xong rồi xem phong thủy lại đổi cửa sang bạch hổ thì có phải đã tốn kém một khoản tiền mà công năng đã xây rồi chỉnh sửa toàn nhà đâu có đơn giản. Nhiều người chọn thiết kế giá rẻ, phong thủy sơ đẳng, tiết kiệm được một ít mà công năng bất cập lại không chuẩn theo phong thủy, sau khi xây xong có muốn sửa lại cũng rất khó và lại tốn kém, thêm nữa là bực tức. Khi ở không có vấn đề gì thì không sao, nhà có chuyện rồi mời 3 thầy phong thủy nói 3 kiểu khác nhau thì khổ rồi.
Nhiều người cho rằng toàn bộ phòng khách phải tốt theo phong thủy. Kts Hoàng chia sẻ với quý vị là không cần, chỉ cần cửa chính có vị trí và hướng tốt, còn vị trí bàn nghế khách không cần tốt hết, chỉ cần ghế của chủ nhà khi ngồi tiếp khách tốt là đủ rồi, ghế khách xấu thì chủ nhà mới ở thế trên và có lợi hơn khách.
Thiết kế kiến trúc phong thủy Nhà ở Hòa Bình
Đồ hình phong thủy áp vào bản vẽ kiến trúc Tầng 2
Trên bản đồ hình phong thủy và bản vẽ tầng 2: Giường ngủ ở phòng mặt tiền đặt ở Phúc Đức nằm ở cung Khôn là tốt đối với người có Tây Tứ Trạch. Giường ngủ ở phòng ngủ phía sau đặt ở cung Lục Sát, như vậy có xấu không? Kts Hoàng Trà khẳng định giường ngủ đó rất tốt, khi tính theo 8 hướng thì tốt với người Đông Tứ Trạch, ngoài ra tính theo Trường phái Huyền Không cũng rất tốt và căn vào lá số để chọn người ngủ hợp. Quý vị có thể “bình luận” thêm sự tốt xấu theo các trường phái phong thủy khác ở phần dưới nhé…
Dưới đây là “Lá số” mà Kts Hoàng Trà lập trên Excel để đặt giường ngủ cho cá nhân. Còn giường ngủ vợ chồng phải tính chung lá số cho cả 2 vợ chồng, từ đó ra màu sắc sơn phòng… Kts Hoàng Trà không giải lá số ở đây, vì là thông tin riêng tư.
Lá số Tứ Trụ kết hợp Tử Vi của Nữ
Lá số Tứ Trụ kết hợp Tử Vi của Nam
Hiện nay, mọi người chỉ tính theo mỗi năm sinh để chọn giường ngủ và màu sắc, vì nó đơn giản và ai cũng biết. Để tính theo cả “năm, tháng, ngày, giờ” thì phải là bậc thầy xem “Lá số tứ trụ” thì ít ai đủ trình độ. Trong bài này Kts Hoàng Trà không giải chi tiết lá số. Mời quý vị xem giải lá số trong mục Tứ Trụ https://phongthuyhoangtra.vn/tu-tru/
Đồ hình phong thủy áp vào bản vẽ kiến trúc Tầng 3
Thiết kế kiến trúc phong thủy Nhà ở Hòa Bình
Đồ hình phong thủy áp vào bản vẽ kiến trúc Tầng 3
Ở tầng 3: Phòng mặt tiền dành cho con và phòng phía sau dành cho khách. Trong phong thủy một ngôi nhà, không nhất thiết tất cả các phòng ngủ đều phải tốt, phòng ngủ cho khách không cần tốt là vì thi thoảng mới có khách đến chơi và ngủ lại.
Phong thủy dù theo trường phái nào cũng phải lưu ý gường ngủ và wc, không ở trên bếp, cầu thang tính số bậc và chiều rộng theo phong thủy. Phòng thờ và ban thờ có thể đặt trên nhà WC, nhưng không được đặt dưới WC hoặc wc ở trước phòng thờ. Tất cả các yếu tố của ngôi nhà đều được căn nhắc theo phong thủy để thiết kế và khi bản vẽ hoàn thiện thì cũng chuẩn theo phong thủy.
Nhiều nhà thường đặt sân phơi ở tầng cao nhất. Với nhà này, yêu cầu của chủ nhà đặt khu giặt phơi đặt luôn ở tầng 3 để tiện sinh hoạt cho gia đình.
Thiết kế kiến trúc phong thủy Nhà ở Hòa Bình
Đồ hình phong thủy áp vào bản vẽ kiến trúc Tầng 4
Tầng 4 đặt ban thờ đáp ứng vị trí tốt theo phong thủy toàn diện, ngoài ra đảm bảo hướng hợp theo bát trạch để gia chủ yên tâm
Phối cảnh Nhà 4 tầng ở Hòa Bình thiết kế kiến trúc phong thủy
Đối với phối cảnh mặt tiền, sẽ theo sở thích của từng chủ đầu tư, có người thích phong cách tân cổ điển, có người thích hiện đại, có người thích tân cổ giao duyên, có người thích nhà kiểu nhật… Tất nhiên, mẫu nhà xấu thì đa số chê xấu, còn với ngôi nhà đẹp thì 5/10 khen đã là thành công. Còn với chủ nhà thích là kiến trúc sư đã vẽ phối cảnh đẹp.












