Biệt thự 4 tầng thiết kế theo phong thủy kiến trúc biệt thự tân cổ điển
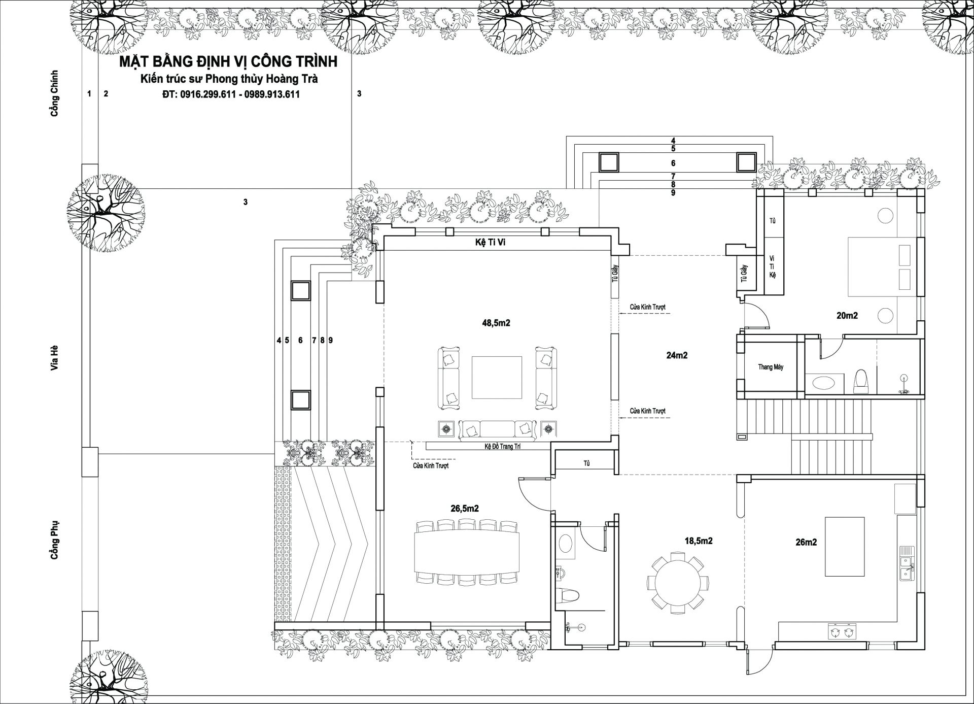
Thiết kế tổng thể có 2 cổng, 1 cổng chính để đón khách và đi lại thường xuyên, 1 cổng để xe ra vào tầng hầm. Có 2 sảnh, 1 sảnh chính liền phòng khách, 1 sảnh phụ đi vào sảnh tầng có thang bộ và thang máy và vào phòng quản gia + bếp + ăn. Có lối đi riêng vào bếp cho giúp việc khi đi chợ về.
Tầng 1: Phòng khách rộng liền sảnh chính, liên thông với sảnh phụ và không gian sảnh tầng. Khu bếp độc lập liên thông với bàn ăn phụ và phòng ăn chính, bếp có lối đi riêng cho giúp việc. Phòng ngủ cho quản gia liền sảnh phụ để tiện quản lý nhà
Tầng 2: phòng ngủ cho bố mẹ liên thông với phòng ngủ con nhỏ, để tiện chăm sóc và tách ra ngủ riêng khi đến tuổi. Sau này con lớn thì phòng ngủ con chuyển thành phòng làm việc. Còn hai phòng ngủ nữa cho các thành viên khác.
Tầng 3: Phòng ngủ ông và bà riêng biệt có khu WC chung, vì tuổi cao có thì có giấc ngủ khác nhau, nhịp sinh học cũng khác nhau và khi có một người bị bệnh thì không ảnh hưởng đến người kia. Có 1 phòng ngủ cho con và 1 phòng ngủ cho khách.
Tầng 4: có phòng thờ liền sân thượng rộng, phòng đa năng là nơi thiền định và tĩnh tu, liền với phòng nghỉ. Khu phơi kín đáo không ảnh hưởng đến không gian sân thượng.
Phối cảnh bỏ tường rào để thấy hết tường tầng 1,để gia chủ hình dung được kiến trúc ngoại thất tầng 1, phần mái có thay đổi một chút để làm phương án so sánh. Phần phối cảnh công trình cần phải duyệt và chốt, thì khi triển khai Hồ sơ kỹ thuật thi công sẽ chuẩn và không bị chỉnh sửa thiết kế
